Planung
Genehmigungs- & Ausführungsplanung:
Innovative Architektur wird durch unsere Fachplanung funktionell und wirtschaftlich umgesetzt.
Unter Berücksichtigung der öffentlich-rechtlichen Vorschriften, geltendem Baurecht und
einschlägigen Normen werden Details für alle Fenster- und Fassadenkonstruktionen erarbeitet.
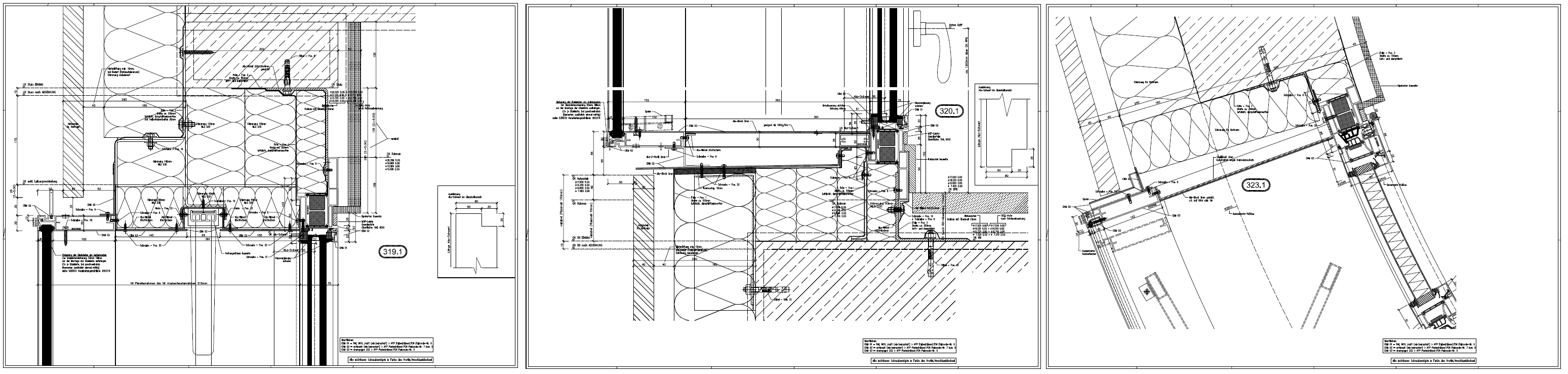
Auf Basis von Entwürfen und Leitdetails werden in Abstimmung mit angrenzenden Bauteilen und
Gewerken Zeichnungen mittels Auto CAD erstellt.
Werkplanung & Arbeitsvorbereitung:
Mit Ausarbeitung und Erweiterung der Genehmigungsplanung zu Werk- und Montageplänen werden
detaillierte Angaben zur Fertigung und Montage gemacht.
Zur Herstellung aller Bauteile werden einzelne Fertigungspläne z.B. für Befestigungskonsolen, Bleche,
Formteile, Stabpläne für Profile usw. erstellt. Durch die Software Logical von Orgadata können für
alle gängigen Fassadensysteme Zuschnittslisten gewonnen und in das betriebseigene
Bearbeitungszentrum eingelesen werden.
Mit separaten Positionsplänen können einzelne Bauteile an der Baustelle problemlos zugeordnet und
montiert werden.
Dieses Vorgehen sorgt für reibunslose Prozessabläufe von der Bestellung, Fertigung bis hin zur
Montage.

